Bauen in Niederwiesa - Grundstück Niederwiesa | Angebot:24379161 Bauen in Niederwiesa - Grundstück Niederwiesa | Angebot:24379161
Bauen in Niederwiesa - Grundstück Niederwiesa | Angebot:24379161 Bauen in Niederwiesa - Grundstück Niederwiesa | Angebot:24379161

Bauen in Niederwiesa

Informationen zur Immobilie:
Grundstücksgröße
1.400,00 m²
Ort
09577 Niederwiesa
Objektart
Grundstück
Größe
ca.
99.500 €
Kaufpreis
Beschreibung:
Mehr zum Angebot Bauen in Niederwiesa:

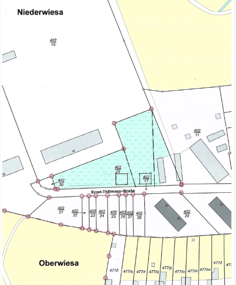
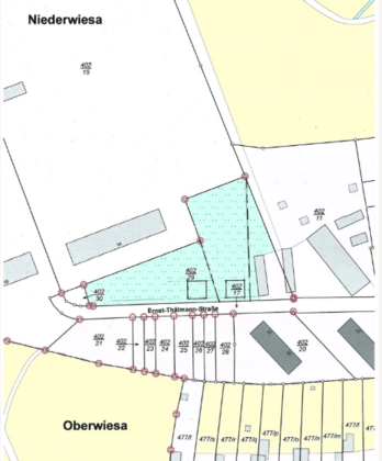
2 großzügige Baugrundstücke mit je ca. 1.400 m² und Bauträgerbindung

Zum Verkauf stehen zwei großzügige Baugrundstücke mit jeweils ca. 1.400 m² Fläche, gelegen in ruhiger, naturnaher Lage – ideal für die Bebauung mit... mehr erfahren
weitere Grundstücke
social facebook social youtube social instagram social tiktok

Copyright © 2000 - 2026 | 1A Infosysteme GmbH | Content by: 1A-Anzeigenmarkt.de 25.04.2026